My Search Tools:

$260,000 - 878 Aurelias Pl, Pensacola

3
Bedrooms
Baths
1,511
SQ. Feet
0.08
Acres

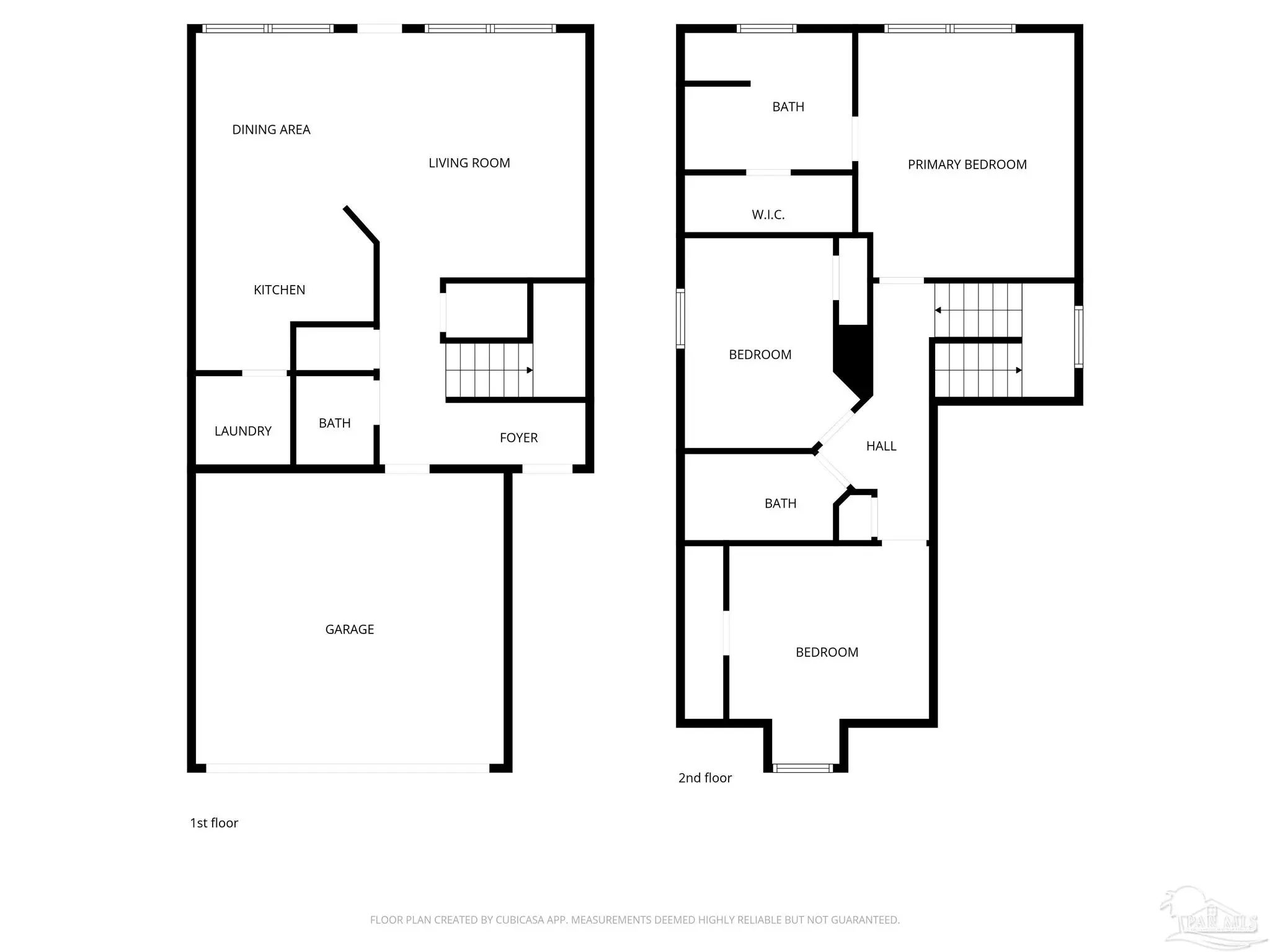
Conveniently located just off Nine Mile Rd near Guidy Lane, this 3 bedroom, 2.5 bathroom two-story home offers an affordable opportunity in a central Pensacola location. Tucked at the end of a cul-de-sac in the Aurelia’s Place subdivision, the home provides easy access to Navy Federal Credit Union campus, UWF, Interstate access, shopping, restaurants, downtown Pensacola and area beaches. The interior features recently updated paint and luxury vinyl plank flooring, making it a low-maintenance option for homeowners or investors. The functional floor plan includes the living area, kitchen/dining space, laundry and a half bath downstairs, with all bedrooms and two full bathrooms located upstairs. The primary bedroom includes a walk-in closet and ensuite bath, while the additional bedrooms share a hall bathroom. The roof was replaced in November 2024 and the home also includes a whole-house water filtration system. If you’re looking for a practical home in a convenient location at an attractive price point, this property is worth a look. Call today for your private tour.

Essential Information

  • MLS® #:
    679136
  • Price:
    $260,000
  • Bedrooms:
    3
  • Bathrooms:
    2.50
  • Full Baths:
    2
  • Square Footage:
    1,511
  • Acres:
    0.08
  • Year Built:
    2014
  • Type:
    Residential
  • Sub-Type:
    Single Family Residence
  • Style:
    Traditional
  • Status:
    Active

Community Information

  • Address:
    878 Aurelias Pl
  • Subdivision:
    Aurelias Place
  • City:
    Pensacola
  • County:
    Escambia - Fl
  • State:
    FL
  • Zip Code:
    32514

Amenities

  • Utilities:
    Cable Available
  • Parking Spaces:
    2
  • Parking:
    2 Car Garage, Front Entrance, Garage Door Opener
  • Garage Spaces:
    2
  • Has Pool:
    Yes
  • Pool:
    None

Interior

  • Interior Features:
    Baseboards, Ceiling Fan(s), High Speed Internet
  • Appliances:
    Electric Water Heater, Dryer, Washer, Built In Microwave, Dishwasher, Disposal, Self Cleaning Oven
  • Heating:
    Heat Pump, Central
  • Cooling:
    Heat Pump, Central Air
  • # of Stories:
    2
  • Stories:
    Two

Exterior

  • Lot Description:
    Cul-De-Sac
  • Windows:
    Double Pane Windows, Blinds
  • Roof:
    Shingle, Hip
  • Foundation:
    Slab

School Information

  • Elementary:
    Mcarthur
  • Middle:
    FERRY PASS
  • High:
    Tate

Additional Information

  • Zoning:
    Res Single

Listing Details

  • Listing Office:
    Century 21 Amerisouth Realty

Copyright© 2026 by the Multiple Listing Service of the Pensacola Association of REALTORS®. This information is believed to be accurate but is not guaranteed. Subject to verification by all parties. This data is copyrighted and may not be transmitted, retransmitted, copied, framed, repurposed, or altered in any way for any other site, individual and/or purpose without the express written permission of the Multiple Listing Service of the Pensacola Association of REALTORS®. Florida recognizes single and transaction agency relationships. Information Deemed Reliable But Not Guaranteed. Any use of search facilities of data on this site, other than by a consumer looking to purchase real estate, is prohibited.