My Search Tools:

$435,000 - 3705 & 3709 W Jackson St, Pensacola

-
Bedrooms
-
Baths
N/A
SQ. Feet
2.94
Acres

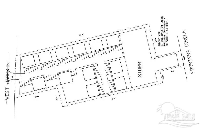
Investment properties with multiple opportunities! MDR zoning offers the potential to build up to twelve duplexes! Five parcels being sold together: 3705, W Jackson St, 3709 W Jackson St, 3730 Frontera Cir, 3732 Frontera Cir and 3700 BLK Frontera Cir. A Pre-layout was drawn for twelve 50x44 duplexes and is available in the documents section. There are several existing buildings: a small engine repair shop which is grandfathered in and residential units which consist of one two bedroom two bathroom house and one small studio house with full kitchen and bathroom.

Essential Information

  • MLS® #:
    677943
  • Price:
    $435,000
  • Acres:
    2.94
  • Type:
    Land
  • Sub-Type:
    Residential Lots
  • Status:
    Active

Community Information

  • Address:
    3705 & 3709 W Jackson St
  • Subdivision:
    None
  • City:
    Pensacola
  • County:
    Escambia - Fl
  • State:
    FL
  • Zip Code:
    32505

School Information

  • Elementary:
    Global Learning Academy
  • Middle:
    WARRINGTON
  • High:
    Pensacola

Listing Details

  • Listing Office:
    Alliance Real Estate

Copyright© 2026 by the Multiple Listing Service of the Pensacola Association of REALTORS®. This information is believed to be accurate but is not guaranteed. Subject to verification by all parties. This data is copyrighted and may not be transmitted, retransmitted, copied, framed, repurposed, or altered in any way for any other site, individual and/or purpose without the express written permission of the Multiple Listing Service of the Pensacola Association of REALTORS®. Florida recognizes single and transaction agency relationships. Information Deemed Reliable But Not Guaranteed. Any use of search facilities of data on this site, other than by a consumer looking to purchase real estate, is prohibited.